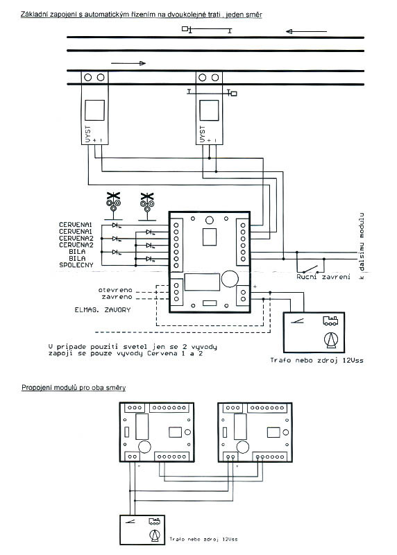
Návod: http://www.eshop-rychle.cz/fotky6287/fotov/_ps_146zavory.pdf
Video: http://www.youtube.com/watch?v=UtVkjrl7Z-U&feature=player_embedded